Back

Blue City Golf Resort - Oman

Category: Hospitality Architecture

Project Role: Senior Designer

lightbox

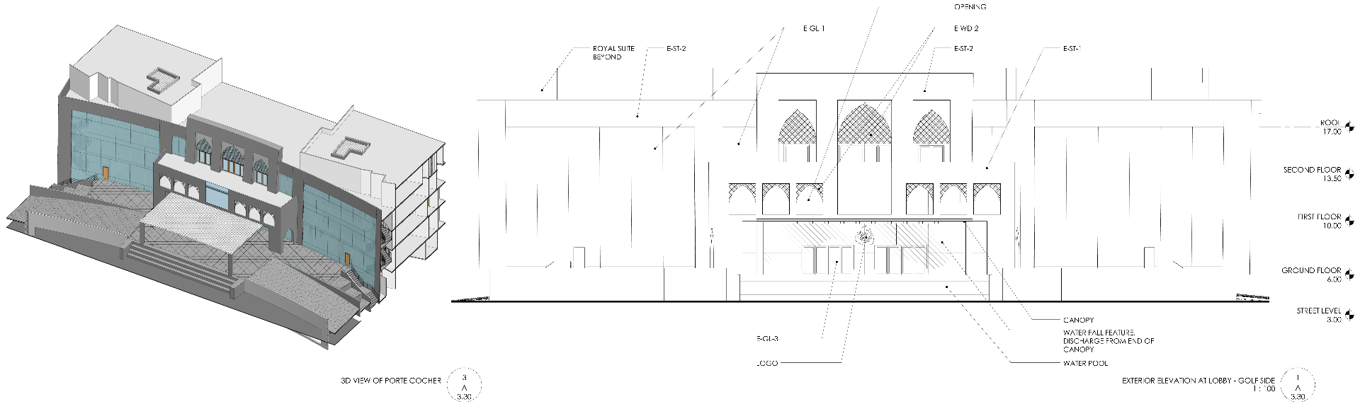
The golf resort is located in the heart of Oman. The master planning was composed of a 3 story 300 guestroom building that took on the round shape of the site / body of water. The building housed, banquet halls, private offices, prayer rooms, retail, restaurants, 3 tennis courts, 5 pools and

lightbox
lightbox
lightbox
lightbox
lightbox
lightbox
lightbox
lightbox

This is a title

Lorem ipsum dolor sit amet, consectetur adipiscing elit, sed do eiusmod tempor incididunt ut labore et dolore magna aliqua. Ut enim ad minim veniam, quis nostrud exercitation ullamco laboris nisi ut aliquip ex ea commodo consequat. Duis aute irure dolor in reprehenderit in voluptate velit esse cillum dolore eu fugiat nulla pariatur. Excepteur sint occaecat cupidatat non proident, sunt in culpa qui officia deserunt mollit anim id est laborum.

lightbox
profile image

. Portfolio