Back

CASA NINA

Year: 2020

A summer house hybrid proposal between passivhaus and cross ventilation. The project combines sustainability with the density of the natural resources of the area, with the aim of preserving resources and reducing the consumption of electricity. It has: -Heat/cooling recuperator. -High performance windows. Walls with non-traditional construction, insulated and without thermal bridges. -Sewage recovery system (septic tank). -Gray water treatment (wetlands). -Rainwater collection and purification system. -Ecological swimming pool combined with a vertical garden. -Dedicated space for the use of photovoltaic panels. DESING: -Alejandro Vera www.linkedin.com/in/alevera46-gmail-com/ -Luis Aguilera www.linkedin.com/in/alejandroseibert25gmailcom/

lightbox

ENSAYO_NIN_000

Video presentation link below: https://youtu.be/YIgIy--KoXY

lightbox

ENSAYO_NIN_001

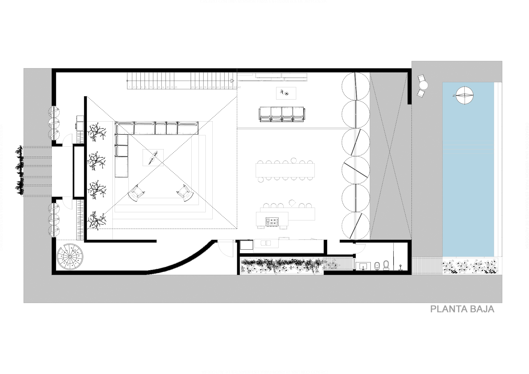
Firts drawings.

lightbox

ENSAYO_NIN_002

lightbox

ENSAYO_NIN_003

lightbox

ENSAYO_NIN_005

lightbox

ENSAYO_NIN_004

lightbox

ENSAYO_NIN_008

-High performance windows. -Walls with non-traditional construction, insulated and without thermal bridges.

lightbox

ENSAYO_NIN_009

Heat/cooling recuperator system.

lightbox

ENSAYO_NIN_010

Cross ventilation.

lightbox

ENSAYO_NIN_011

Artificial wetland: They consist of a ground on which an impermeable material is placed to prevent the liquid from seeping into the subsoil. A substrate mixture consisting of sand, gravel, stone and other components is placed on top of this tool. Finally, aquatic plants that float on the water are used.

lightbox

ENSAYO_NIN_012

lightbox

ENSAYO_NIN_013

lightbox

ENSAYO_NIN_014

Yellow is a color that cannot be ignored. It is visible to the naked eye and makes a space look dynamic. That is why it conveys a sense of energy and vitality to the people who frequent or stay in the place. In a room or any other place decorated with some shade of yellow, the feeling of optimism reigns. It is even a color that encourages conversation, ideal to promote sustainable designs.

lightbox

ENSAYO_NIN_015

lightbox

ENSAYO_NIN_016

lightbox

ENSAYO_NIN_017

lightbox

ENSAYO_NIN_018

lightbox

ENSAYO_NIN_019

All warm colors, including yellow, create a noticeable warm feeling in the room. This is why we perceive the space as comfortable or cozy. The effect is much more noticeable when combined with brown, wood and other warm colors.

lightbox

ENSAYO_NIN_020

lightbox

ENSAYO_NIN_021

lightbox

ENSAYO_NIN_022

lightbox

ENSAYO_NIN_023

profile image

ALEJANDRO VERA